An Atrium Glass Roof in Brookline, MA


by | Sep 1, 2023 | Construction

Today we’re pleased to introduce a project we’ve been working on for clients located in Brookline, Massachusetts. Our talented team set out to create a custom atrium glass roof to grace the entry of our client’s newly renovated home. Spanning an impressive 10′ x 13′, the custom glass roof we provided stands as a testament to the harmonious fusion of design, engineering, and construction our company is known for.

To complete this project, we worked with Colin Smith Architecture, based in Lexington, as well as Kenneth Vona and Son Construction, a general contractor located in Natick. Sunspace Design contributed by providing the design, manufacturing, and field installation of the roof system. Components were developed in the controlled environment of our workshop and carefully transported to the job site to minimize build times. Let’s take a closer look at the build process.

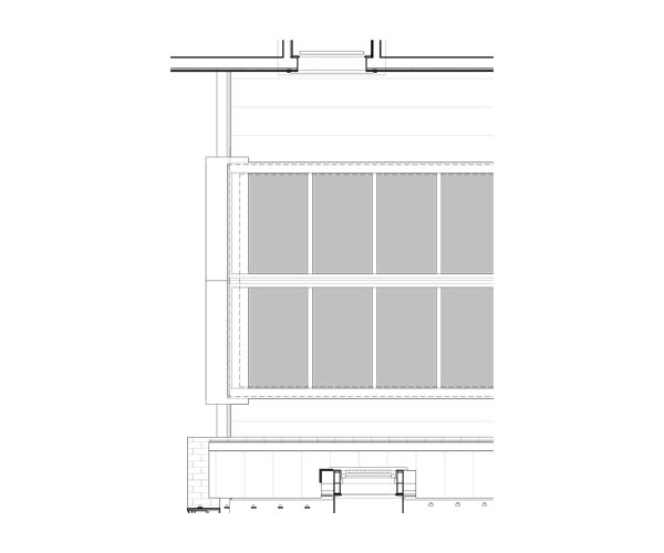
A longitudinal section of the atrium skylight.
This drawing was provided by the architect.

An overhead view of the custom glass roof system
This drawing was provided by the architect.

Another view of the new skylight.

A cross section of the new skylight.

Millwork and assembly begins in the Sunspace Design woodworking shop.

One of the two roof sections has been completed in the shop.

The general contractor has prepared the structural opening with the steel ridge beam in place.

Sections of the atrium frame are placed in the opening.

The solid mahogany atrium roof frame is installed and ready to receive glass!

High-performance PPG SolarBan 70 insulated glass is installed.

The insulated glass roof is now ready for the glazing system.

An interior view of the wall and atrium framing.

A look at the rafter edge details and the ridge.
All connectors are concealed throughout the frame.

Exterior capping and flashing is completed in freedom grey aluminum.

The interior is nearing completion.

We’re proud of this collaboration and think the results speak for themselves. The finished glass roof celebrates our craftsmanship and underscores Sunspace Design’s remarkable flexibility – whether working hand in hand with industry peers or taking the reins as a start-to-finish general contractor, we deliver results that leave a lasting imprint of beauty and ingenuity. We’re ready to bring those results to you. When you’re ready to let the light in, contact Sunspace Design.

Pin It on Pinterest